Just Listed

Rouse Hill

Contact Agent!

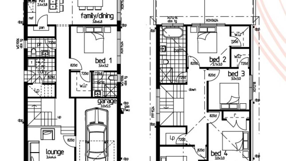
5 2 1 276.80 m2

Double Storey Custom Build | call Ilyas 0455 448 640

A New Benchmark in Modern Living

Welcome to Gundari—the pinnacle of contemporary suburban life in North West Sydney.

Set within a master-planned community surrounded by picturesque parklands, Gundari offers a seamless blend of lifestyle and convenience. With close proximity to leading schools, vibrant retail hubs, efficient public transport, and recreational facilities, this exceptional development redefines modern living.

Positioned in the heart of the thriving Rouse Hill precinct, Gundari is an exclusive two-stage residential release featuring architecturally designed turnkey house and land packages. Each home is meticulously crafted by one of Australia’s leading construction and design teams, delivering a new standard of quality, comfort, and community.

Embark on the Gundari journey—where thoughtful design meets future-focused living.

Refined Living, Thoughtfully Designed

Every Gundari residence is a showcase of sophisticated design and everyday functionality. Crafted with premium materials and tailored to suit modern family lifestyles, these homes sit in a beautifully natural setting while offering immediate access to the energy of Rouse Hill. From spacious open-plan layouts to luxurious finishes, Gundari delivers comfort without compromise.

Seamlessly Connected to the North West

Gundari enjoys a privileged position within a dynamic and growing corridor of Sydney. With Tallawong Metro Station just moments away, residents benefit from rapid, direct access to the Sydney CBD and major destinations across the North West.

But Gundari’s true distinction lies in its balance—where urban accessibility meets the serenity of nature. Surrounding green spaces, parklands, and walking trails invite you to unwind and explore, while nearby educational institutions offer pathways from early childhood to secondary schooling.

Everything Within Reach

Whether you're grabbing your morning coffee, ticking off the weekly shop, or enjoying a relaxed meal out, Gundari places you at the centre of it all. Rouse Hill Town Centre and Rouse Hill Village Centre are just a short drive away, offering a curated mix of retail, cafés, dining, and entertainment—all within easy reach.

Gundari is more than a place to live—it's a connected, inspired community crafted for those who value quality, convenience, and a sense of belonging.

 

Agent Name: Ilyas Qureashi

Email: Ilyas@property1group.com.au Contact:  043 8319 996

5 2 1 276.80 m2

Details

Suburb Rouse Hill
Price Contact Agent!
Property Type Residential
Property ID 62012
Category House And Land Package
Land Area 276.80 m2
Floor Area 211.30 m2

Tools

Share This Property